Name of the Monument / Built Heritage / Site स्मारक / निर्मित धरोहर / स्थल का नाम
Takya of Kamli Shah
State / राज्य
Delhi
District / जिला
South
Manual District
Sub District / उप-जिला
Others
Manual Sub District
Mehrauli
Village / गाँव
Others
Manual Village
Mehrauli
Cultural Affiliation / सांस्कृतिक सम्बंधन
Late Medieval - उत्तर मध्यकाल
Date/Period तारीख/युग
C. 18th - 19th Cent. CE
Sub Period
Late Mughal
Geo-Location / भू-अवस्थिति
Approx. 1.7 km to the north-west of Qutub Minar metro station and 750 m to the south-west of Mehraul
Latitude / अक्षांश
28
30
58
Longitude / देशान्तर
77
10
51
Approach to the Monument / पहुंचने का मार्ग
Approach /पहुंचने का मार्ग
Approx. 1.7 km to the north-west of Qutub Minar metro station and 750 m to the south-west of Mehrauli bus stand
Air Port / विमानपत्तन
IGI
Railway Station / रेलवे स्टेशन
Nizamuddin
Bus Station / बस स्टैंड
Mehrauli
Topographical Features / स्थलाकृतिक विशेषताएं
Topographical Feature / स्थलाकृतिक विशेषताएं
Others- अन्य
Topographical Description / स्थलाकृतिक विवरण
It lies in area between the flood plain of river and Delhi Ridge. Delhi Ridge is a Northern extension of ancient Aravalli Range.
History / इतिहास
Brief History / संक्षिप्त इतिहास
Kamli Shah was a young lady who abandoned worldly affairs and became a mendicant. She lived during the time of Bahadur Shah Zafar II and the takya abode with the mosque was built for her by the emperor.
Local / Traditional description associated with Built Heritage / Site
निर्मित धरोहर / स्थल से सम्बंधित स्थानीय/ परम्परागत विवरण
Regular prayers are held at the mosque along with other important religious ceremonies.
Architectural Style / स्थापत्य शैली
Mughal - मुग़ल
Building/ Structure/Site
इमारत / संरचना / स्थल
Description of Building/ Structure/Site
इमारत/संरचना/स्थल का विवरण
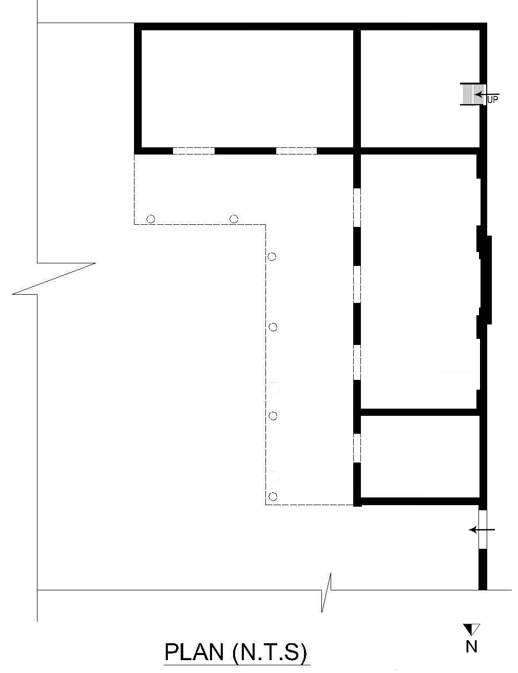
The structure is built on height and has rubble masonry stepped retaining walls. At the upper level of the mound, there is a three bay mosque and an attached double storey building which appears to have been a residence. The upper floor is accessible from a staircase at the rear end of the mosque.
Structure material and other material
संरचनागत सामग्री और अन्य घटक
Building/Structure material and other material used प्रयोग में लाई गई इमारती / संरचनागत सामग्री और अन्य घटक
It is constructed of rubble masonry and brick finished with plaster. Vaulted roof is of brick and coated with plaster. Later addition and extension is made with modern bricks, cement and concrete.