Name of the Monument / Built Heritage / Site स्मारक / निर्मित धरोहर / स्थल का नाम
Charkkar Wali Masjid
State / राज्य
Delhi
District / जिला
South
Manual District
Sub District / उप-जिला
Others
Manual Sub District
Defence Colony
Village / गाँव
Others
Manual Village
Cultural Affiliation / सांस्कृतिक सम्बंधन
Late Medieval - उत्तर मध्यकाल
Date/Period तारीख/युग
C. 18th - 19th Cent. CE
Sub Period
Late Mughal
Geo-Location / भू-अवस्थिति
At the north-east ends of the roundabout at the intersection of Lodi road and Mathura road.
Latitude / अक्षांश
28
35
37
Longitude / देशान्तर
77
14
35
Approach to the Monument / पहुंचने का मार्ग
Approach /पहुंचने का मार्ग
Approx. 1.8 km to the north of Nizamuddin railway station and approx. 1.6 km to the north-east of Nizamuddin bus stand via Mathura Road, Sunder Nagar
Air Port / विमानपत्तन
IGI
Railway Station / रेलवे स्टेशन
Nizamuddin
Bus Station / बस स्टैंड
Nizamuddin
Topographical Features / स्थलाकृतिक विशेषताएं
Topographical Feature / स्थलाकृतिक विशेषताएं
Others- अन्य
Topographical Description / स्थलाकृतिक विवरण
It lies in area between the flood plain of river Yamuna and Delhi Ridge. Delhi Ridge is a Northern extension of ancient Aravalli Range.
History / इतिहास
Brief History / संक्षिप्त इतिहास
No significant information is available on the history of the mosque.
Local / Traditional description associated with Built Heritage / Site
निर्मित धरोहर / स्थल से सम्बंधित स्थानीय/ परम्परागत विवरण
Regular prayers in held at the mosque along with other important religious ceremonies.
Architectural Style / स्थापत्य शैली
Mughal - मुग़ल
Building/ Structure/Site
इमारत / संरचना / स्थल
Description of Building/ Structure/Site
इमारत/संरचना/स्थल का विवरण
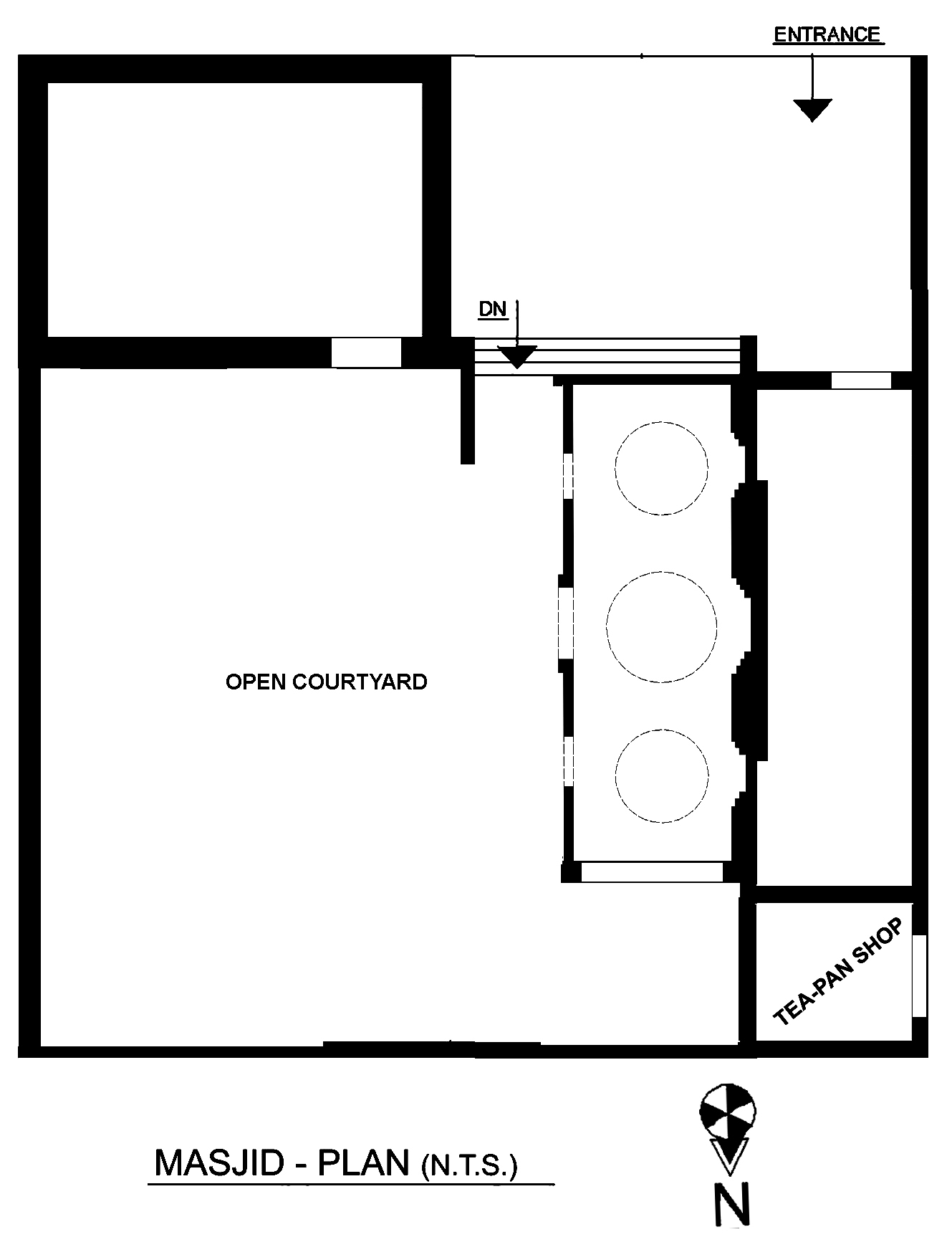
This Late Mughal mosque is in good structural condition. Its prayer chamber which measures 8 m by 2.9 m is roofed by three bulbous domes with cresting and entered through three arched entrance. The original western Qibla wall has three mihrab recesses and upper domes have small openings and the inside is accessible. The underside of the dome is well decorated. The building is also used as a Madarsa and extensions in concrete have been constructed which are not make conformity with the original structure.
Structure material and other material
संरचनागत सामग्री और अन्य घटक
Building/Structure material and other material used प्रयोग में लाई गई इमारती / संरचनागत सामग्री और अन्य घटक
The principal material is the brick masonry with which the foundation and the superstructure are constructed and coated with plaster. Modification, extension and alteration have done with modern brick, concrete and plastered with cement.